บ้านสวย.ไทย | baansuay.in.th
Home
รีวิวบ้านใหม่
ราคาไม่เกิน 3 แสน
ราคาไม่เกิน 5 แสน
ราคาไม่เกิน 1 ล้าน
ราคาเกิน 1 ล้าน
แบบบ้าน
บ้านไม้
บ้านเดี่ยว
บ้าน 2 ชั้น
บ้านน๊อคดาวน์
รีโนเวทบ้าน
ไอเดียแต่งบ้านแต่งสวน
แต่งบ้าน
แต่งสวน
DIY
ร้านกาแฟ
วิถีพอเพียง
วิถึพอเพียง
เกษตรพอเพียง
ปลูกพืชผลไม้ยืนต้น
ไม้ผลยืนต้น
พืชผัก พืชสมุนไพร
ไม้เศรษฐกิจ
Home
เกี่ยวกับเรา
รีวิวบ้านใหม่
All
ราคาไม่เกิน 3 แสน
ราคาไม่เกิน 5 แสน
ราคาไม่เกิน 1 ล้าน
ราคาเกิน 1 ล้าน
บ้านพักอาศัยชั้นเดียว สไตล์คอมเทมโพรารี่ 3 ห้องนอน 2 ห้องน้ำ
รีวิวบ้านใหม่
-
18 ธ.ค. 2568
บ้านหลังนี้เริ่มจากโจทย์สำคัญ ที่ดินหน้าแคบ ขนาด 𝟐 ห้องนอน 𝟐 ห้องน้ำ 𝟏 ห้องนั่งเล่น-รับประทานอาหาร 𝟏 ห้องแต่งตัว 𝟏 ห้องครัว 𝟏 ห้องเก็บของ 𝟐ที่จอดรถ
รีวิวบ้านใหม่
-
18 ธ.ค. 2568
แบบบ้านเดี่ยวทรงโมเดิร์น ขนาด 2 ห้องนอน 2 ห้องน้ำ ขนาด 91 ตร.ม.
รีวิวบ้านใหม่
-
25 พ.ย. 2568
แบบบ้านโมเดิร์นทรงกล่อง สถาปนิกต่างชาติ
รีวิวบ้านใหม่
-
25 พ.ย. 2568
บ้านงบ 3 แสน คุ้มเกิน
รีวิวบ้านใหม่
-
20 เม.ย. 2565
บ้านสไตล์โมเดิร์น งบก่อสร้าง 300,000 บาท (ไม่รวมรั้ว)
รีวิวบ้านใหม่
-
28 ก.ค. 2563
บ้านกล่อง เล็กแต่ครบครัน งบ 2.9 แสนบาท
รีวิวบ้านใหม่
-
12 มิ.ย. 2564
ไอเดียบ้านสวยหลังเล็ก งบก่อสร้าง 250,000
รีวิวบ้านใหม่
-
24 ธ.ค. 2566
โมเดิร์น งบ 4.8 แสน 2 ห้องนอน
รีวิวบ้านใหม่
-
14 ก.ย. 2564
บ้านเล็กๆ ใช้งบ 4.8 แสน
รีวิวบ้านใหม่
-
3 ต.ค. 2563
บ้านสไตล์โมเดิร์น ราคา 480,000 บาท
รีวิวบ้านใหม่
-
14 พ.ค. 2563
บ้านสไตล์โมเดิร์น ราคา 480,000 บาท
รีวิวบ้านใหม่
-
6 พ.ค. 2563
บ้านสไตล์โมเดิร์นทรงกล่อง งบ 1 ล้านต้นๆ
รีวิวบ้านใหม่
-
12 ธ.ค. 2564
บ้านสไตล์คอนเทมโพรารี่ งบ 1 ล้าน ได้ถึง 3 ห้องนอน 2 ห้องน้ำ 1 ห้องโถง 1 ห้องครัว
รีวิวบ้านใหม่
-
6 มิ.ย. 2564
โมเดิร์นงบไม่ถึง 1 ล้าน พื้นที่ 104 ตร.ม.
รีวิวบ้านใหม่
-
10 พ.ค. 2564
บ้านแฝดทรงโมเดิร์น ราคา 990,000 บาท (ไม่รวมสุขภัณฑ์ในห้องน้ำ)
รีวิวบ้านใหม่
-
4 มิ.ย. 2563
บ้านพักอาศัย 2ชั้น สไตล์สไตล์ทรอปิคอล ขนาด 3 ห้องนอน 4 ห้องน้ำ พื้นที่ใช้สอย 416 ตร.ม.
รีวิวบ้านใหม่
-
14 ก.ย. 2567
บ้านพักอาศัย 2ชั้น สไตล์สไตล์ทรอปิคอล 3 ห้องนอน 4 ห้องน้ำ ขนาด 416 ตร.ม.
รีวิวบ้านใหม่
-
23 พ.ค. 2567
บ้านสไตล์นอดิก โทนสีขาวสไตล์มินิมอล ราคาหลักแสน
รีวิวบ้านใหม่
-
21 ก.ค. 2564
บ้านโมเดิร์น 3 ห้องนอน งบก่อสร้าง 9.5 แสนบาท
รีวิวบ้านใหม่
-
20 ก.ย. 2563
แบบบ้าน
All
บ้านไม้
บ้านเดี่ยว
บ้านเ 2 ชั้น
บ้านน๊อคดาวน์
Courtyard House ใน Rangareddy ประเทศอินเดีย
แบบบ้านเดี่ยว
-
17 พ.ย. 2568
ไอเดียบ้านพักสวยน่ารัก
แบบบ้านเดี่ยว
-
30 ต.ค. 2568
บ้านพักตากอากาศน็อคดาวน์โครงเหล็ก
แบบบ้านเดี่ยว
-
5 ต.ค. 2568
10 ไอเดียบ้านสวนสวย
แบบบ้านเดี่ยว
-
26 ส.ค. 2568
10 ไอเดียบ้านไม้ไผ่สวยน่ารัก
แบบบ้านไม้
-
13 ส.ค. 2568
บ้านไม้ในสวน บ้านไม้ยกพื้นในสวน
แบบบ้านไม้
-
26 พ.ค. 2568
ไอเดียบ้านไม้สวยแบบญี่ปุ่น
แบบบ้านไม้
-
27 เม.ย. 2568
ไอเดียบ้านไม้สวย
แบบบ้านไม้
-
21 มี.ค. 2568
Courtyard House ใน Rangareddy ประเทศอินเดีย
แบบบ้านเดี่ยว
-
17 พ.ย. 2568
ไอเดียบ้านพักสวยน่ารัก
แบบบ้านเดี่ยว
-
30 ต.ค. 2568
บ้านพักตากอากาศน็อคดาวน์โครงเหล็ก
แบบบ้านเดี่ยว
-
5 ต.ค. 2568
10 ไอเดียบ้านสวนสวย
แบบบ้านเดี่ยว
-
26 ส.ค. 2568
Chola House บ้านกับธรรมชาติที่ผสมผสานให้รู้สึกว่าอยู่กับธรรมชาติตลอดเวลา
แบบบ้านสองชั้น
-
5 ส.ค. 2568
11 ไอเดียบ้านชายทุ่งสวยน่ารัก
แบบบ้านสองชั้น
-
9 ก.ค. 2568
แบบบ้าน 2 ชั้น : 4 ห้องนอน 4 ห้องน้ำ งบ 3.58 ลบ.
แบบบ้านสองชั้น
-
3 พ.ค. 2568
บ้านเติมฝัน วิลล่า สุพรรณบุรี Baan TeimFan Villa Suphanburi
แบบบ้านสองชั้น
-
28 พ.ย. 2567
ไอเดียบ้านน็อคดาวน์สไตล์ญี่ปุ่น งบเริ่ม 5.6 แสนบาท
บ้านน็อคดาวน์
-
27 พ.ค. 2568
บ้านน็อคดาวน์โมเดิร์น
บ้านน็อคดาวน์
-
4 พ.ค. 2568
ไอเดียบ้านกล่องสวยหลังเล็ก
บ้านน็อคดาวน์
-
19 ก.พ. 2568
บ้านไม้น็อคดาวน์สไตล์นอร์ดิก ขนาด 2 ห้องนอน 1 ห้องน้ำ
บ้านน็อคดาวน์
-
6 ก.พ. 2568
รีโนเวทบบ้าน
All
รีโนเวทบ้านพักอาศัย บ้านสไตล์ชนบทสมัยใหม่
รีโนเวทบ้าน
-
3 ก.ค. 2568
ไอเดียรีโนเวทบ้านสวย2ชั้น
รีโนเวทบ้าน
-
13 มิ.ย. 2568
รีโนเวททาวน์เฮาส์เก่าให้เป็นบ้านสไตล์มินิมอลมูจิ
รีโนเวทบ้าน
-
16 เม.ย. 2568
รีโนเวททาวน์เฮาส์ สไตล์ซับซ้อน อบอุ่นและอบอุ่น เหมาะสําหรับคู่รักวัยเยาว์
รีโนเวทบ้าน
-
25 มี.ค. 2568
ไอเดียตกแต่ง
All
แต่งบ้าน
แต่งสวน
DIY
ร้านกาแฟ
8 ไอเดียมุมพักผ่อนหลังบ้าน
DIY
-
17 พ.ย. 2568
15 ไอเดียมุมผิงไฟสวยๆ
DIY
-
17 พ.ย. 2568
ไอเดียจัดแต่งครัว
ไอเดียแต่งบ้าน
-
21 ส.ค. 2568
ไอเดียแต่งห้องมินิให้น่าอยู่
ไอเดียแต่งบ้าน
-
21 ส.ค. 2568
ไอเดียจัดแต่งครัว
ไอเดียแต่งบ้าน
-
21 ส.ค. 2568
ไอเดียแต่งห้องมินิให้น่าอยู่
ไอเดียแต่งบ้าน
-
21 ส.ค. 2568
ไอเดียแต่งห้องน่ารักการ์ตูน
ไอเดียแต่งบ้าน
-
26 พ.ค. 2568
ไอเดียปลูกต้นไม้ในตัวบ้าน ปลูกต้นไม้กลางบ้าน
ไอเดียแต่งบ้าน
-
24 เม.ย. 2568
Cafe HOM เป็นได้ทั้งร้านกาแฟและบ้านพักอาศัย
ร้านกาแฟ
-
18 ธ.ค. 2568
ไอเดียคาเฟ่+สวนผักสวย
ร้านกาแฟ
-
26 ต.ค. 2568
ไอเดียร้านกาแฟสวยน่ารักสไตล์ญี่ปุ่น
ร้านกาแฟ
-
15 ต.ค. 2568
ข้างบ้าน Coffee Camp
ร้านกาแฟ
-
1 ก.ค. 2568
ไอเดียจัดสวนมินิมอล น่านั่งจิบกาแฟ ผ่อนคลายสบายใจ และไอเดียบ้านมินิมอล
ไอเดียแต่งสวน
-
4 มิ.ย. 2568
ไอเดียจัดพื้นที่แคบข้างบ้านให้เป็นสวนและที่นั่งเล่น
ไอเดียแต่งสวน
-
30 มี.ค. 2568
ไอเดียจัดพื้นที่สวนนั่งเล่นพักผ่อนบริเวณบ้าน
ไอเดียแต่งสวน
-
25 มี.ค. 2568
ไอเดียมุมนั่งเล่นข้างบ้าน
ไอเดียแต่งสวน
-
3 ม.ค. 2568
8 ไอเดียมุมพักผ่อนหลังบ้าน
DIY
-
17 พ.ย. 2568
15 ไอเดียมุมผิงไฟสวยๆ
DIY
-
17 พ.ย. 2568
ไอเดียกระถางต้นไม้น่ารัก
DIY
-
26 เม.ย. 2568
15 ไอเดียเล้าไก่/บ้านไก่น่ารัก
DIY
-
7 ก.พ. 2568
วิถีพอเพียง
All
วิถีพอเพียง
เกษตรพอเพียง
Sukasantai Farmstay วิถีชีวิตเชิงเกษตร
เกษตรพอเพียง
-
1 ก.ค. 2568
ไอเดียคลองไส้ไก่สวยๆ
เกษตรพอเพียง
-
30 มี.ค. 2568
ไอเดียบ้านสวนในวัยเกษียณ
วิถีพอเพียง
-
1 มี.ค. 2568
บ้านสวนพิมพ์สุข บ้านไม้สองชั้นใต้ถุนสูง ในบรรยากาศสุดสงบ แวดล้อมด้วยธรรมชาติของทิวเขาเนินมะปราง ในจังหวัดพิษณุโลก
วิถีพอเพียง
-
28 ก.ค. 2567
ไอเดียบ้านสวนในวัยเกษียณ
วิถีพอเพียง
-
1 มี.ค. 2568
บ้านสวนพิมพ์สุข บ้านไม้สองชั้นใต้ถุนสูง ในบรรยากาศสุดสงบ แวดล้อมด้วยธรรมชาติของทิวเขาเนินมะปราง ในจังหวัดพิษณุโลก
วิถีพอเพียง
-
28 ก.ค. 2567
ไอเดียโคกหนองนา บ้านสวน
วิถีพอเพียง
-
20 พ.ย. 2565
พื้นที่ 5 ไร่ จัดสรรพื้นที่เป็นสัดส่วน ภายใต้ปรัชญาเศรษฐกิจพอเพียง
วิถีพอเพียง
-
15 พ.ค. 2564
Sukasantai Farmstay วิถีชีวิตเชิงเกษตร
เกษตรพอเพียง
-
1 ก.ค. 2568
ไอเดียคลองไส้ไก่สวยๆ
เกษตรพอเพียง
-
30 มี.ค. 2568
ไอเดียบ้านสวนผักสวยๆที่หลังบ้าน 🧡🧡
เกษตรพอเพียง
-
5 ต.ค. 2566
แบบโรงเรือนคอกวัว
เกษตรพอเพียง
-
12 มี.ค. 2566
Sukasantai Farmstay วิถีชีวิตเชิงเกษตร
เกษตรพอเพียง
-
1 ก.ค. 2568
ไอเดียคลองไส้ไก่สวยๆ
เกษตรพอเพียง
-
30 มี.ค. 2568
ไอเดียบ้านสวนผักสวยๆที่หลังบ้าน 🧡🧡
เกษตรพอเพียง
-
5 ต.ค. 2566
แบบโรงเรือนคอกวัว
เกษตรพอเพียง
-
12 มี.ค. 2566
ปลูกพืชผล
All
ไม้ผลยืนต้น
พืชผัก พืชสมุนไพร
ไม้เศรษฐกิจ
ไอเดียสวนผักหลังบ้าน
การปลูกพืชผักสมุนไพร
-
13 ส.ค. 2568
ไอเดียแปลงผักสวยๆ
การปลูกพืชผักสมุนไพร
-
2 ม.ค. 2568
20 ไอเดียบ้านเเละสวนผักสวยๆ
การปลูกพืชผักสมุนไพร
-
11 มิ.ย. 2566
25 ไอเดียแปลงสวนผักเล็กน่ารักๆ
การปลูกพืชผักสมุนไพร
-
14 พ.ค. 2566
ไอเดียสวนผักหลังบ้าน
การปลูกพืชผักสมุนไพร
-
13 ส.ค. 2568
ไอเดียแปลงผักสวยๆ
การปลูกพืชผักสมุนไพร
-
2 ม.ค. 2568
20 ไอเดียบ้านเเละสวนผักสวยๆ
การปลูกพืชผักสมุนไพร
-
11 มิ.ย. 2566
25 ไอเดียแปลงสวนผักเล็กน่ารักๆ
การปลูกพืชผักสมุนไพร
-
14 พ.ค. 2566
TRENDING NOW:
Cafe HOM เป็นได้ทั้งร้านกาแฟและบ้านพักอาศัย
บ้านพักอาศัยชั้นเดียว สไตล์คอมเทมโพรารี่ 3 ห้องนอน 2 ห้องน้ำ
บ้านหลังนี้เริ่มจากโจทย์สำคัญ ที่ดินหน้าแคบ ขนาด 𝟐 ห้องนอน 𝟐 ห้องน้ำ 𝟏 ห้องนั่งเล่น-รับประทานอาหาร 𝟏 ห้องแต่งตัว 𝟏 ห้องครัว 𝟏 ห้องเก็บของ 𝟐ที่จอดรถ
แบบบ้านเดี่ยวทรงโมเดิร์น ขนาด 2 ห้องนอน 2 ห้องน้ำ ขนาด 91 ตร.ม.
แบบบ้านโมเดิร์นทรงกล่อง สถาปนิกต่างชาติ
แบบบ้านสองชั้น
Machiya บ้านญี่ปุ่นในเมืองคาวาโกเอะ
by Admin
-
10 มิ.ย. 2563 เวลา 22:16
211 Views
พื้นที่ -
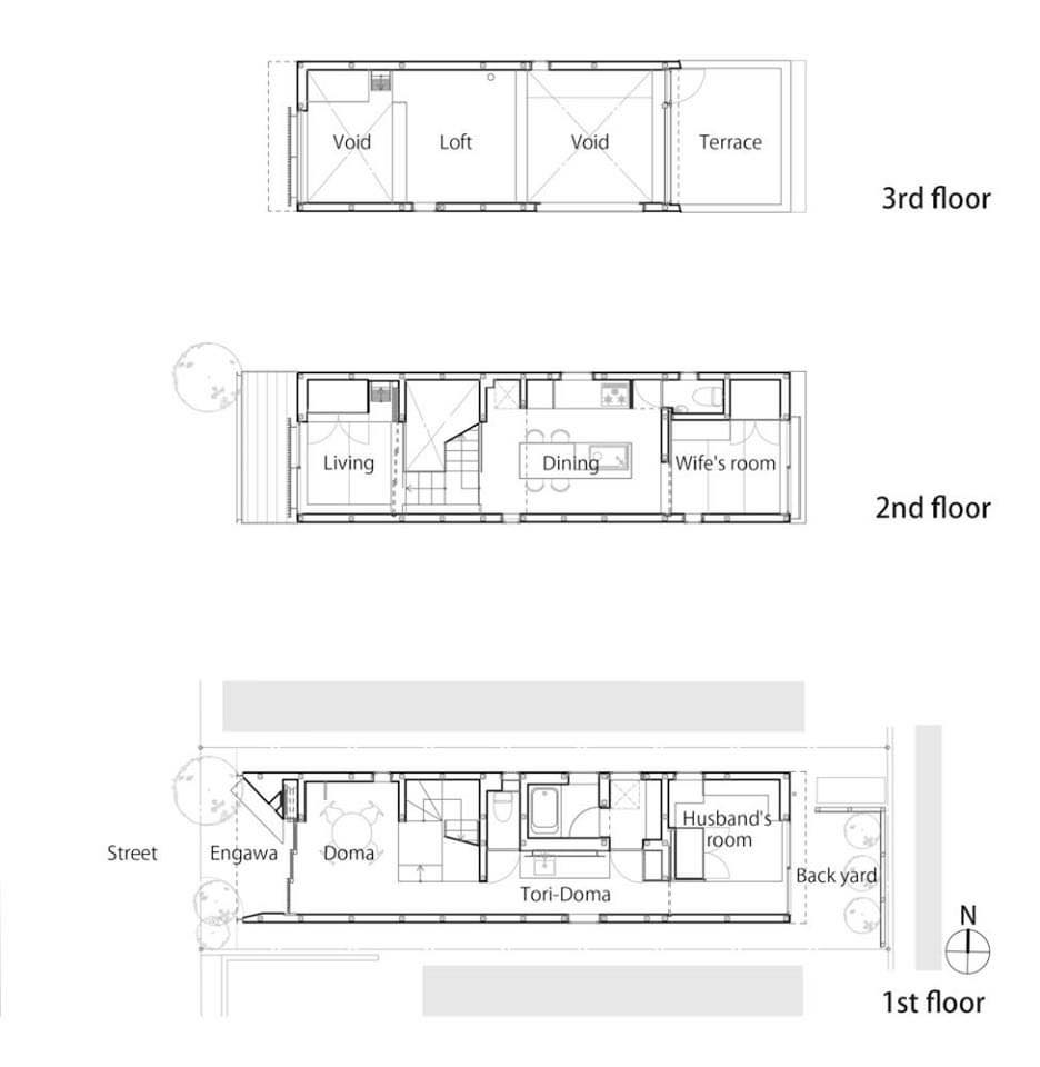
Machiya บ้านญี่ปุ่นในเมืองคาวาโกเอะ ดีไซน์ภายนอกออกแบบให้รักษาบรรยากาศดั้งเดิมของชุมชน ด้วยผนังสีดำเข้ม และระแนงไม้ ตัวบ้านหน้าแคบ จึงออกแบบให้พื้นที่ภายในเชื่อมต่อกันตัดส่วนของกำแพงที่ไม่จำเป็นออกเพื่อให้บ้านดูโล่งขึ้น
เจ้าของผลงาน
cr : K+S Architects / Japan
photo : Hiroshi Ueda
เฟซบุ๊ค แปลน แบบบ้าน
Tags:
บ้านสองชั้น
โมเดิร์น
Share:
Facebook
Line
Twitter
มาใหม่
Cafe HOM เป็นได้ทั้งร้านกาแฟและบ้านพักอาศัย
ร้านกาแฟ
-
10 มิ.ย. 2563
บ้านพักอาศัยชั้นเดียว สไตล์คอมเทมโพรารี่ 3 ห้องนอน 2 ห้องน้ำ
รีวิวบ้านใหม่
-
10 มิ.ย. 2563
บ้านหลังนี้เริ่มจากโจทย์สำคัญ ที่ดินหน้าแคบ ขนาด 𝟐 ห้องนอน 𝟐 ห้องน้ำ 𝟏 ห้องนั่งเล่น-รับประทานอาหาร 𝟏 ห้องแต่งตัว 𝟏 ห้องครัว 𝟏 ห้องเก็บของ 𝟐ที่จอดรถ
รีวิวบ้านใหม่
-
10 มิ.ย. 2563
Tags
รีวิวบ้านใหม่
แบบบ้าน
แต่งบ้าน
แต่งสวน
DIY
วิถีพอเพียง
English
CU-ATS
INDA CU