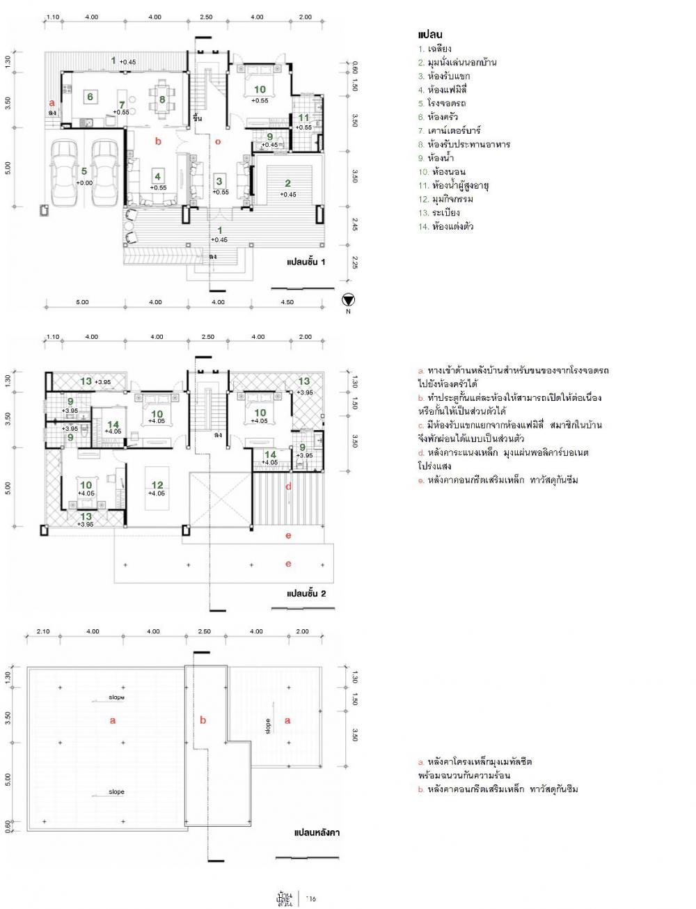
บ้าน 2 ชั้นสไตล์โมเดิร์นที่ออกแบบให้มีชายคาหลังคากันสาดและระแนงบังแดดให้สอดคล้องกับสภาพอากาศมีเฉลียงและมุมนั่งพักผ่อนหน้าบ้านสำหรับทำกิจกรรมร่วมกันภายในบ้านมีห้องรับแขกแบบเป็นทางการสำหรับผู้ใหญ่และห้องนั่งเล่นสำหรับพักผ่อนซึ่งทำประตูกั้นให้สามารถใช้งานพร้อมกันได้โดยไม่รบกวนกัน มีห้องนอนและห้องน้ำสำหรับผู้สูงอายุอยู่ชั้นล่าง ชั้นบนมีห้องนอน 3 ห้อง และมุมอเนกประสงค์ ซึ่งอาจใช้วางโต๊ะปิงปอง จัดเป็นมุมอ่านหนังสือ หรือมุมนั่งเล่นก็ได้
