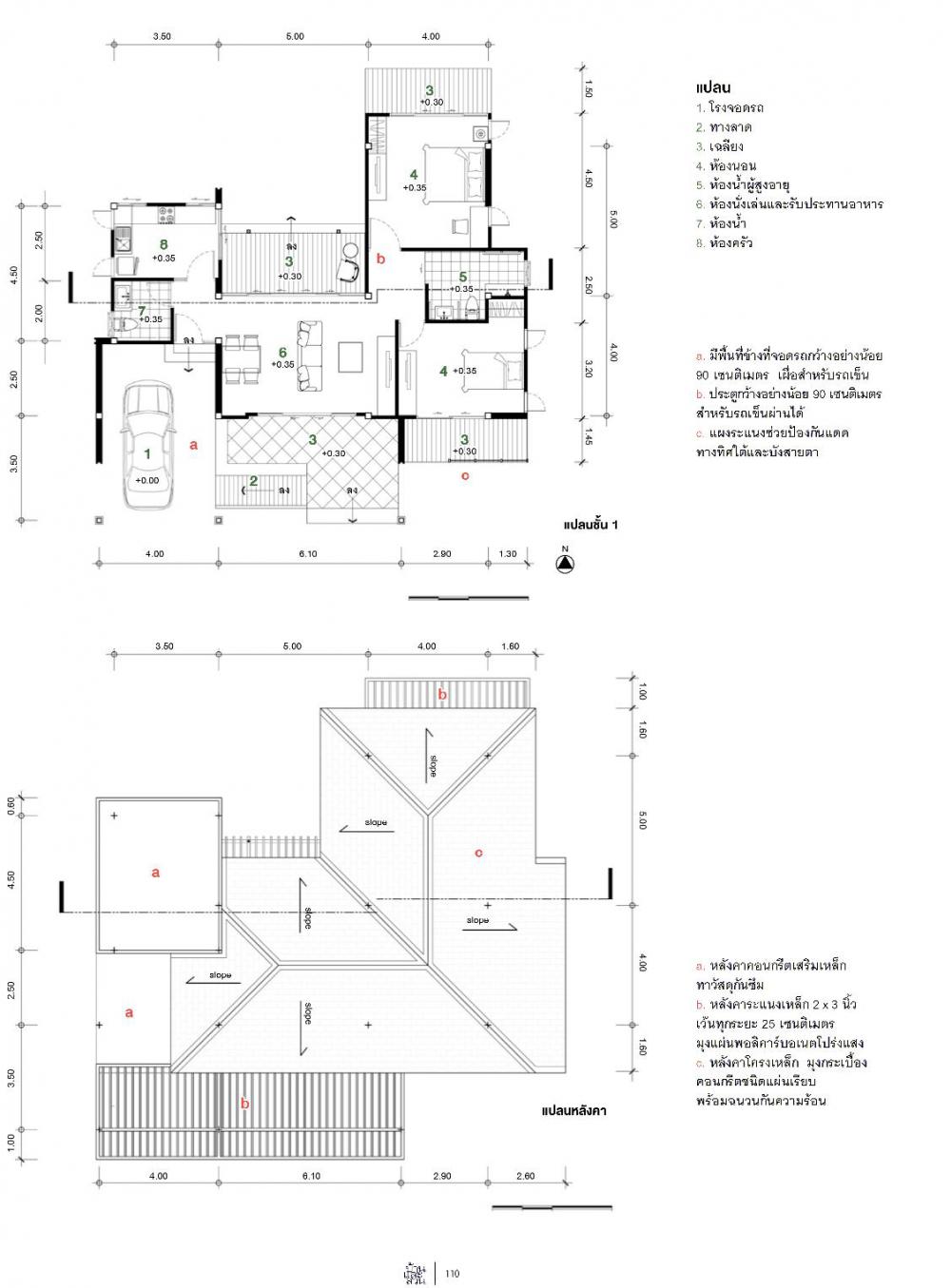
บ้านชั้นเดียวสไตล์ทรอปิคัลโมเดิร์น 2 ห้องนอน 2 ห้องน้ำ ที่มีห้องน้ำผู้สูงอายุสำหรับใช้ร่วมกัน ส่วนนั่งเล่นและรับประทานอาหารเปิดโล่งสองฝั่งให้เห็นมุมมองสวนหน้าบ้านและหลังบ้าน ที่ทำเฉลียงให้ออกไปนั่งเล่นได้ทั้งสองฝั่งห้องครัวและโรงจอดรถอยู่ทิศตะวันตกช่วยป้องกันความร้อนให้ภายในบ้าน
